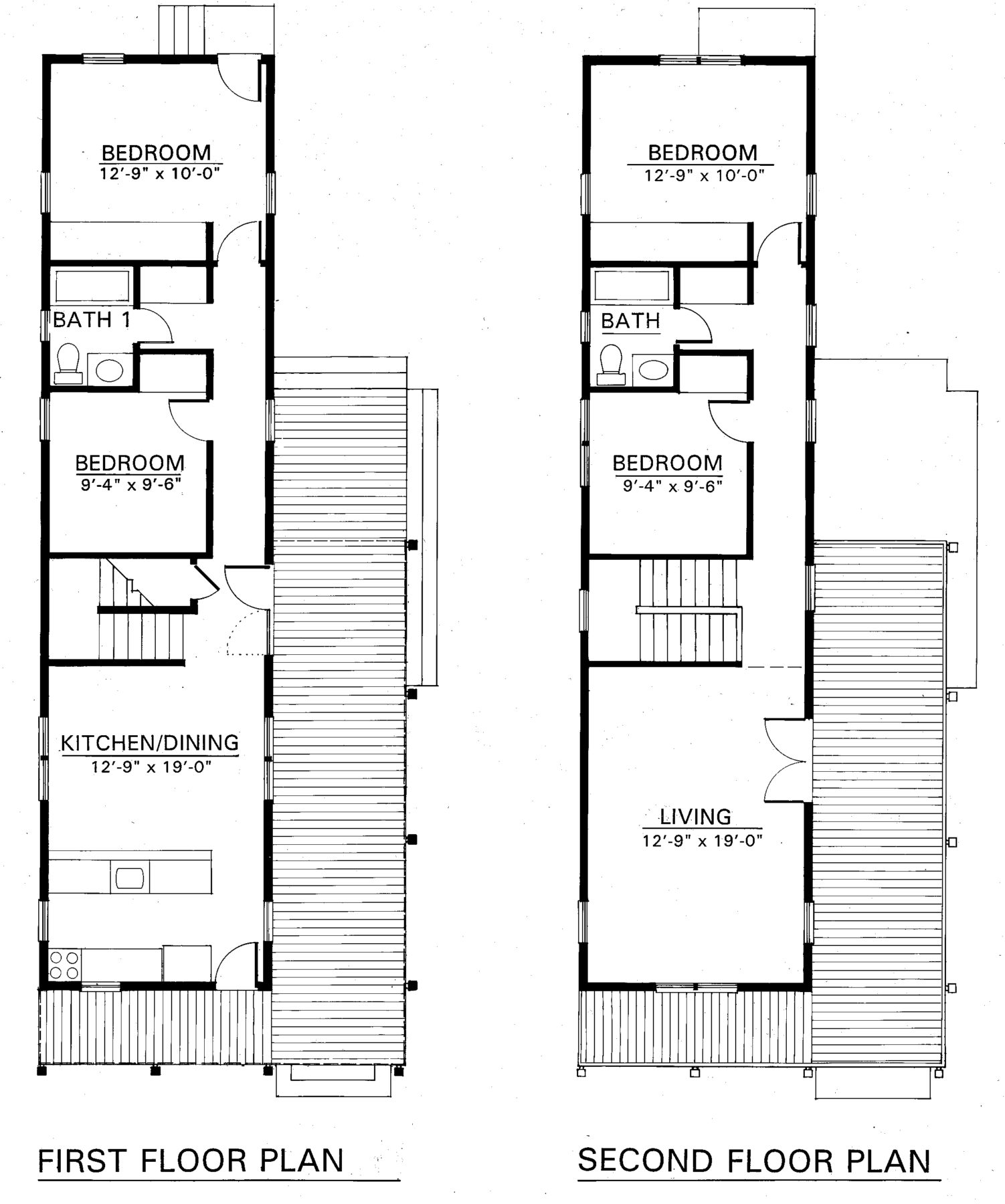
Progressive Architecture
Affordable House Prototype
Cleveland, OH
[ THE CHALLENGE ] Design an economical prototype for affordable housing in a national competition sponsored by Progressive Architecture magazine.
[ THE RESPONSE ] Placing first out of 630 entries, the double high modular design accommodates a range of different family types and sizes and offers flexibility for ongoing transformations. The prefabricated construction uses folding panels to increase the options for spatial and architectural variety. Adaptions of the design have been utilized on other urban sites.





